不動産購入の窓口



[会社概要]
株式会社SYJ
〒564-0062
大阪府吹田市垂水町1-21-18
Leo's垂水201号
TEL:06-4981-7383
FAX:06-7182-3976
E-mail:info@syj.co.jp
大阪府知事(1)第65172号
営業時間:10:00~19:00
定休日:毎週水曜日

物件情報

2024年築!大人気Brilliaシリーズが箕面に!!!
マンション

Brillia Tower箕面船場TOP OF THE HILL

賃料(管理費)
500,000円
敷金/礼金
500000 / 1000000
間取り
2 LDK
面積
106.26㎡
  • インターネット
  • オートロック
  • エアコン
  • クローゼット
  • バス・トイレ別
  • 洗面所独立
  • フローリング
  • 洗濯機
  • 宅配BOX
  • ペット可
SYJではお客様に寄り添ったお部屋のご提案からご契約後のアフターサービスまで全力でサポートいたします♪不動産屋となると、怖いイメージを持たれる方が多いのではないでしょうか???? SYJでは、女性スタッフも多数在籍しておりますので、ご安心ください(^^♪このお部屋に住んで良かった!SYJを選んで良かった!と思って頂けるように、精一杯頑張ります!

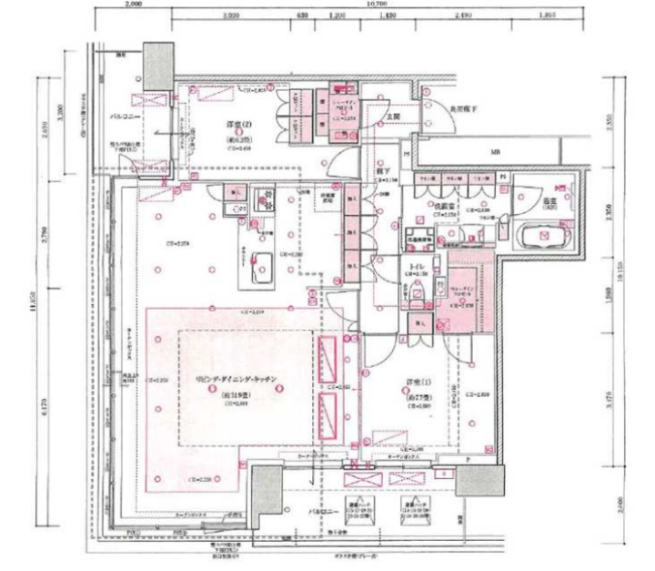
物件写真・間取り

物件概要

住所箕面市船場東3丁目
交通機関

北大阪急行 箕面船場阪大前 徒歩 3分

北大阪急行 箕面萱野 徒歩 18分

北大阪急行 千里中央駅 徒歩 21分

所在階 / 階数

19

主要採光面 東側
建物構造

RC

築年月2024年10月
駐車場

有り

駐車場料金

23000

住宅保険

23000

現況

情報登録日2025年05月23日
情報更新日2025年05月23日

設備・備品

キッチン類

システムキッチン カウンターキッチン 食洗器 3口ガスコンロ

バス・トイレ類

バストイレ別 トイレに洗面台有り 独立洗面台 

その他

 

物件設備

エントランス エレベーター  

部屋設備

エアコン TVインターホン 追い炊き 浴室乾燥機

契約情報

契約形態

普通借家契約

契約期間

取引態様

媒介

カード決済
利用可能種類

各種クレジットカード利用可能

資料請求・お問い合わせ

物件名Brillia Tower箕面船場TOP OF THE HILL
お問い合わせ内容
お名前必須
フリガナ必須
電話番号任意
メールアドレス必須

確認のため同じアドレスをご入力ください。

備考欄任意

ご希望の連絡方法、見学希望日、希望条件、質問などがございましたら、ご記入ください