物件情報
大阪でのお部屋探しは株式会社SYJへ!当店は居住用物件だけでなく、貸店舗・貸事務所についても取り扱っております。女性スタッフ多数在籍しています。安心してお問い合わせください♪
戸建て
野田5丁目リノベーション貸家
先行募集貸家!現在フルリノベーション中です!設備も一新します
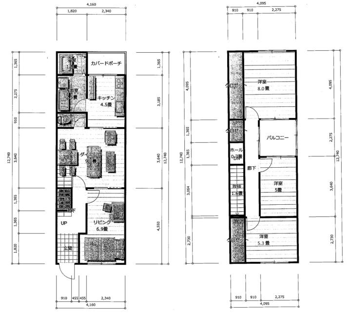
物件写真・間取り
物件概要
住所 | 大阪府大阪市福島区野田5丁目 | 交通機関 | JR大阪環状線 野田駅 徒歩 8分 地下鉄千日前線 玉川駅 徒歩 9分 JR大阪環状線 西九条駅 徒歩 12分 |
---|---|
間取り詳細 | 洋8 洋5.3 洋5 LDK20.5 |
所在階 / 階数 | 1/2 |
主要採光面 | 南側 |
建物構造 | 木造 |
駐車場 | 無 |
住宅保険 | 20000円/2年 |
引渡 | 2025年8月上旬 |
現況 | リフォーム中 |
備考 | 現在リノベーション中! |
情報登録日 | 2025年06月12日 |
情報更新日 | 2025年06月12日 |
物件番号 | 19720613-392c |
設備・備品
キッチン類 | システムキッチン(ガス3口) |
---|---|
バス・トイレ類 | ウォシュレット、シャンプードレッサー |
契約情報
契約形態 | 普通借家契約 |
---|---|
契約期間 | 2年年 |
取引態様 | 一般 |
カード決済 利用可能種類 | 各種クレジットカード利用可能 |
物件地図人型アイコンを地図上にドラッグするとストリートビューで表示されます。
大阪府大阪市福島区野田5丁目